If you’re in Erie, Meadville, Warren, Corry, Titusville, or anywhere across Northwestern Pennsylvania and you’ve been searching for a modular home builder who actually serves your area, the answer is closer than you might think.
Owl Homes of Fredonia is located in Fredonia, NY, roughly 20 miles northeast of Erie PA, and we’ve been delivering and installing modular and manufactured homes across Erie County PA and the broader Northwestern Pennsylvania region for decades. We’re not a national franchise with a regional rep who answers your call. We’re a family-owned dealership with a physical campus, a hands-on team, and a track record that spans more than 50 years of building homes in this part of the country.
If you’ve been searching for modular homes near Erie PA, this is worth a read. And if you’re ready to talk now, call us at 716-673-1366 or reach out through our contact page.
Do Modular Home Builders Actually Serve Northwestern Pennsylvania?
This is one of the first questions we hear from PA buyers, and it’s a fair one. A lot of national modular home companies list service areas that are technically accurate but practically misleading. They’ll mark a region as covered and then tell you the nearest dealer is three hours away.
Owl Homes is genuinely local to Northwestern Pennsylvania. Erie County PA sits directly on our service boundary, and our active delivery and installation footprint covers Erie, Millcreek, Fairview, Girard, Corry, Union City, Waterford, Cambridge Springs, Edinboro, Meadville, Titusville, Warren, and the surrounding townships and rural communities throughout this part of the state. We handle permits, site work, delivery, and installation ourselves. We have a licensed real estate agent on staff who can help you find land in PA if you don’t already own a lot. We don’t hand you off to a third party when the home crosses the state line.
The modular home builders serving Erie PA are fewer than buyers often expect. If you’ve been coming up short in your search, that’s the reality of the landscape, not a reflection of your options. Owl Homes fills that gap in a meaningful way.
We also serve the full Western New York market, including all of Erie, Chautauqua, Cattaraugus, and Niagara counties. If you’re in the Southern Tier, the Buffalo metro, or anywhere between Niagara Falls and Jamestown, we’re your neighbor as much as we are Erie PA’s.
What Types of Modular Homes Are Available for PA Buyers?
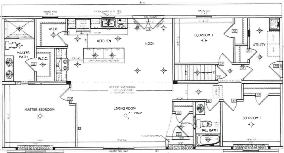
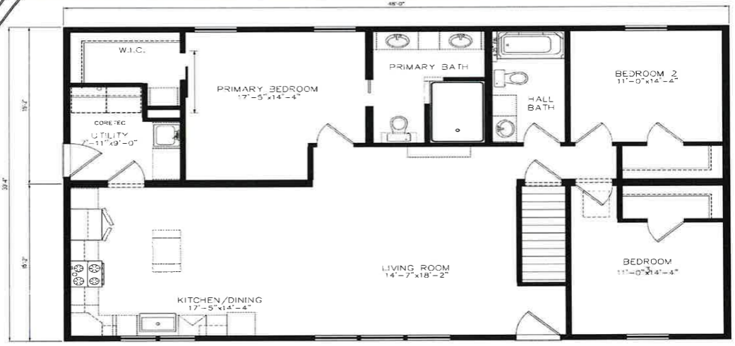
Northwestern Pennsylvania buyers have access to the same full range of home styles and manufacturers that our Western New York customers choose from. That includes single-section manufactured homes, modular ranch homes, Cape Cod style modular homes, two-story modular homes, chalet styles, and loft models.
Our manufacturers include Commodore, Manorwood, Champion/Skyline, and New Era Homes, all of which build to Pennsylvania state building codes. A modular home delivered in Erie County PA is built to the same structural and energy standards required by the state, not watered-down national minimums.
Did you know that modular homes in Pennsylvania are built in a factory-controlled environment, then transported to your site and set on a permanent foundation? That process typically results in tighter construction tolerances than a comparable stick-built home because every stage of the build happens indoors, away from weather delays, moisture exposure, and the scheduling gaps that come with site construction. The finished product is a home that’s indistinguishable from a site-built home on the outside and often better built on the inside.
Here are a few of the most popular styles among PA buyers:
Modular ranch homes are the most requested style in Northwestern PA. Single-story layouts work well on rural and semi-rural lots, and the open floor plan options give families the space they need without adding a second story to the construction budget.
Cape Cod modular homes are a strong choice for buyers who want more square footage per lot footprint. The signature steep roofline with dormers creates usable upper-floor space. One thing worth knowing: on our display campus, the Cape Cod models typically feature an unfinished upper floor, which is actually one of the reasons buyers find them so compelling. You can see exactly what the raw space looks like and understand the full potential before you decide whether to finish it now or later as your needs and budget allow.
Two-story and loft modular homes suit families who need multiple bedrooms and defined living spaces across two levels. These work particularly well on narrower lots where building up is more practical than building out.
Browse our full home styles and options at owlhomeswny.com to get a sense of what’s available before you visit the campus.
5 Things PA Buyers Should Know Before Choosing a Modular Home Builder
Shopping for a modular home in Northwestern Pennsylvania is a different process than buying a resale home or working with a production builder. Here’s what matters most.
1. Verify the builder actually delivers to your county. Not every NY-based modular home dealer serves PA. Owl Homes actively delivers and installs throughout Erie County PA and the broader 8-county Northwestern PA region. Ask specifically, not generally.
2. Understand what turnkey really means. The word gets used loosely in this industry. A true turnkey modular home builder handles permits, site preparation, foundation work, full basement packages, delivery, installation, utility connections, interior electrical, lighting, receptacles, plumbing rough-in coordination, and final setup. Garages, driveways, porches, decks, and patios are also part of what Owl Homes can coordinate. You get one total project price that’s already determined upfront, covering everything from the ground up, so you’re not sourcing separate contractors for each phase or discovering hidden costs mid-build. That single price structure saves most buyers real money compared to managing the pieces independently.
3. Know the difference between modular and manufactured. Both are built in a factory. A modular home is built to the same local and state building codes as a site-built home and is placed on a permanent foundation. A manufactured home is built to federal HUD standards and can be placed on various foundation types. Both are quality options depending on your land, budget, and financing situation. Our team can walk you through the differences in plain language without any pressure to choose one over the other.
4. Land first, then home. If you don’t already own a lot in Northwestern PA, start there. Our in-house licensed real estate agent can help you identify land in your target area and think through site considerations before you select a home. This step saves significant time and avoids cost surprises later in the process.
5. Visit the campus before you decide. Owl Homes has close to $2 million in model homes on display at 3752 East Main Road in Fredonia, NY. The drive from Erie PA is roughly 20 minutes. Bring the family. Bring friends. Walking through finished homes, talking through floor plans, seeing finishes and room sizes in person, and sitting down with our team to get real pricing, monthly payment estimates, and down payment information is a completely different experience than browsing online. No appointment needed and no pressure when you get there.
How Does Modular Home Pricing Work in Northwestern Pennsylvania?
Modular home pricing in PA follows the same basic structure as in New York. The home itself is priced based on square footage, style, floor plan, and finish level. Site costs, which include foundation work, utility connections, and delivery, are factored into the overall package price rather than left as a list of unknowns you figure out later.
The honest answer on total cost is that it depends on your specific lot, your selected home, and what site work your land requires. What we can tell you is that prefab homes in the Erie PA region are generally competitive with or below comparable stick-built construction, particularly when you factor in the faster build timeline, tighter construction tolerances, and the single-source pricing structure that eliminates the contractor coordination overhead most buyers underestimate.
Our team walks every buyer through a clear, complete picture of what their project costs before anyone signs anything. Reach out here or call 716-673-1366 to start that conversation.
Come See It in Person
There’s a reason we point every PA buyer toward the campus before they make a decision. Modular homes look different on paper than they do in person, and in person they almost always exceed expectations. Walking through a finished ranch home, a Cape Cod with an unfinished upper floor you can actually stand in and visualize, or a wide-open ranch layout with premium kitchen finishes changes the conversation fast.
Our team is there to answer questions, pull up floor plans, walk through design options, and give you real numbers on pricing, monthly payments, and down payment requirements, all in a relaxed, no-pressure environment. Bring the whole family. The campus is designed for exactly that kind of visit.
We’re at 3752 East Main Road in Fredonia, NY, open Monday through Friday 9 to 5 and Saturday 9 to 4.
Follow along on Facebook for campus updates and home tours, watch real installations and full walkthroughs on our YouTube channel, and check out our blog for more on what to expect from the modular home process. You can also reach us on Instagram or contact us directly anytime.
Frequently Asked Questions
Does Owl Homes of Fredonia deliver modular homes to Erie PA and Northwestern Pennsylvania? Yes. Owl Homes actively delivers and installs modular and manufactured homes throughout Erie County PA and across the broader Northwestern Pennsylvania region including Meadville, Warren, Corry, Titusville, and surrounding communities. Call 716-673-1366 to confirm service to your specific location.
What is the difference between a modular home and a manufactured home in Pennsylvania? A modular home is built in a factory and constructed to Pennsylvania state building codes, then set on a permanent foundation. A manufactured home is built to federal HUD standards and can be placed on various foundation types. Both are factory-built, quality-constructed options. The right choice depends on your land, financing, and long-term goals. Our team can walk you through both in plain language.
How far is Owl Homes of Fredonia from Erie PA? Our campus in Fredonia, NY is approximately 20 miles northeast of Erie PA, roughly a 20 to 25 minute drive. Many Erie County PA buyers make the trip to walk through our display campus before making a decision. No appointment is required during business hours.
Can Owl Homes help me find land in Northwestern Pennsylvania? Yes. We have a licensed real estate agent on staff who can assist with land searches in PA and NY. Finding the right lot before selecting a home makes the entire process smoother and helps avoid site-related cost surprises later on.
Article & Imagery by Nicholas Bellanti
Contact





