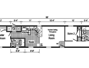
On the Lot – Commodore Blazer TS102A

Manufactured Manufactured 952 sq. ft. 3 2

Overview

This single-wide has a functional floor plan and just a few important upgrades, making it one of our most affordable values.

Contact Us

Upgrades

  • Upgraded Furnace
  • 40-Gallon Water Heater
  • Exterior Faucet
  • Main Water Shutoff in Utility Room
  • Large Bath Window
  • Additional Ceiling Lights
  • Kitchen Island
  • Energy Star Package
  • Black Cabinet Pulls
  • Medicine Cabinet