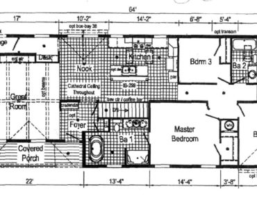
On the Lot – Commodore Astro Creations 3AM2041P-1

Manufactured Manufactured 1792 sq. ft. 3 2

Overview

Contact Us

Upgrades

  • Window Wall
  • Prepped for Basement Stairwell
  • 50-Gallon Water Heater
  • Black Faucet Package
  • 5/12 Roof Pitch
  • Paddle Fan
  • Cage Pendant Lights over Island
  • Market Square Siding with Shake Accents
  • Microwave over Range
  • Black Appliance Package
  • Barnwood Ceiling Beams
  • Plank Flooring
  • Freestanding Tub in Master
  • Drywall Upgrade