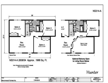
Manorwood Custom Two Story Homes – Hunter NS314A2-Story

Modular Modular 1968 sq. ft. 3 3

Overview

The Manorwood series is a collection of homes that covers the entire spectrum of homebuilding.  If it is small and basic – Manorwood has the design for you.

If you are looking for a custom design that requires a total redraw by our in-house drafting team, Manorwood can do it. Manorwood’s plans are popular in every area of the Northeast United States.

 

View all Standard Features and Options and Download a full Brochure at This Link:

https://www.manorwoodhomes.com/homes/manorwood-two-story-homes/hunter/ns314a/2-story/?home_id=1931

 

 

Contact Us