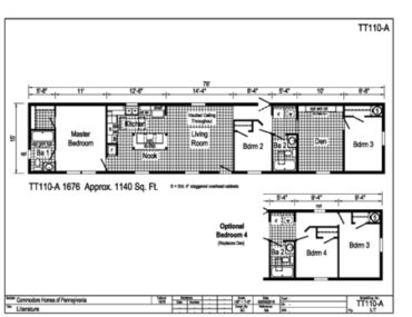
COMMODORE BLAZER ELITE TT110A

Manufactured Manufactured 1140 sq. ft. 3 2

Overview

Our Blazer Ranch Series is our most affordable series of homes. With fewer selections of colors, options, and floor plans, the Blazer Series is designed to be budget friendly.

Built to our strict quality standards, the Blazer Series is one of the best values in the manufactured housing market today.

https://www.commodore-pennsylvania.com/homes/blazer/tt110a/single/?home_id=3360

Contact Us

Upgrades

COMMODORE ELITE 16 WIDE BLAZER

16 X 76  FT    1,140 SQ FT