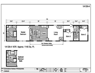
Commodore Astro 1A129A

Manufactured Manufactured 1180 sq. ft. 3 2

Overview

With china sinks throughout and the Vermont Maple Interior Package, this home simply must be seen in person!

See Pictures of This Home Below!

716-673-1366

3752 E. Main Rd

Fredonia, NY 14063

Contact Us